Nous locals
SALESIANS LLEIDA
PROJECTE NOUS LOCALS ISL
Des de la Plataforma social estem en procés de traslladar a un nou edific tots els projectes de formació i orientació laboral que es desenvolupen als actuals locals de Mariola (antic CIJCA). Després d’un llarg procés, la Fundació Jovent, propietària dels locals, ha aconseguit formalitzar la compra d’un edifici al carrer Hostal de La Bordeta de Lleida. Aquest pas tan important ha estat possible gràcies a la col·laboració i suport de la Congregació de la Missió (Paüls), propietària de l’immoble.
El canvi d’ubicació és una aposta de futur, per oferir millors espais i oportunitats al jovent que acompanyem cada dia. Amb aquest nou edifici, no només aconseguim un espai més ampli i ben ubicat, sinó que també garantim millores en les condicions d’il·luminació i ventilació, la qual cosa crearà un entorn de treball i formació molt més saludable i motivador per a tots els que formen part de la nostra comunitat. El disseny dels espais s’està fent amb la mirada posada en la homologació de diferents Certificats de Professionalitat (CP) i Programes de Formació i Inserció (PFI) que permetran ampliar el catàleg de cursos i el seu reconeixement.
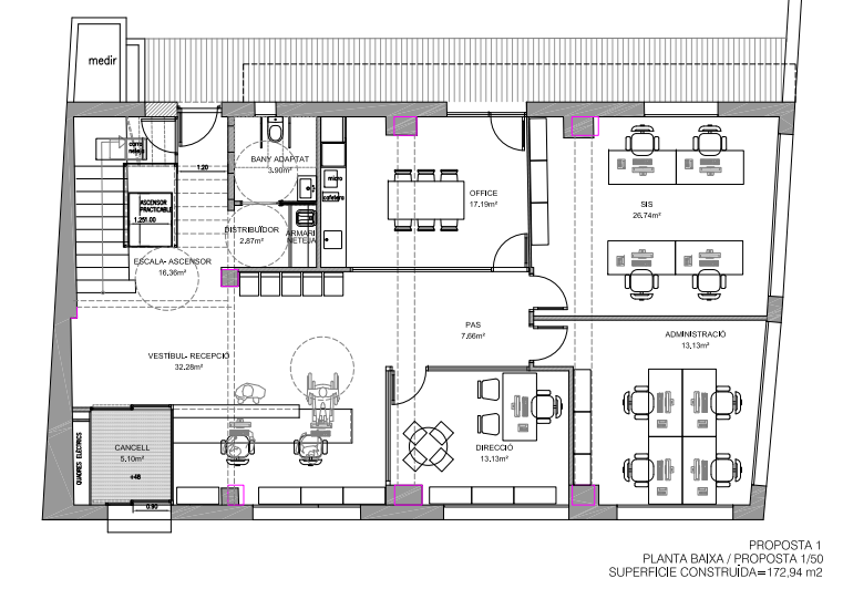
Així tenim previstos els següents espais per a la formació:
| Espai | Superfície (m2) | Espai | Superfície (m2) | |
| Aula polivalent 1 | 40 | Taller instal·lacions | 100 | |
| Aula polivalent 2 | 34 | Taller de càtering | 90 + 20 | |
| Despatxos | 71 | Aula informàtica i gestió | 56 |
El projecte hi compta també amb despatxos i espais per a l’acollida i atenció a persones. Consulta la proposta inicial de plànols
Aquest projecte no seria possible sense la suma d’esforços de moltes persones, i per això volem compartir aquesta fita amb tots els que, dia rere dia ens doneu suport i compartiu la nostra missió d’oferir un futur millor als/les joves en risc d’exclusió social. Pots mirar les diferents formes de col·laborar-hi a continuació.
Objectiu
Euros
Recaptat
Euros
%
Transferència
La Caixa:
ES63 2100 8637
61 0200093674
Concepte: Nous locals ISL Lleida
Codi Bizum
06973
Concepte: Nous locals ISL Lleida
FES UN DONATIU
Recolza la nostra feina. Amb la teva col·laboració podem combatre l’exclusió social d’infants i joves a través dels diferents projectes que impulsem.
Dels primers 250€ donats et tornaran un 80% en la teva declaració de la renta. Informa’t sobre els diferents avantatges fiscals.
En aquest moment tenim el projecte de l’adquisició d’uns nous locals per als nostres projectes d’inserció socio-laboral. El nostre objectiu és un local amb un mínim de 500 m2 amb diferents espais: tres aules multifuncionals, dos tallers, aula d’informática, sala de visites i tutoria, despatxos .
AVANTATGES FISCALS
Tenim molt bones notícies per totes aquelles persones que han decidit fer-se socis/es de la Fundació Magone Salesians Social.
Des de l’1 de gener del 2024 ha entrat en vigor la reforma de la Llei de Mecenatge (Llei 49/2002, de 23 de desembre, de règim fiscal de les entitats sense ànim de lucre i d’incentius fiscals de mecenatge) que augmenta els incentius fiscals per persones físiques i jurídiques que col·laboren econòmicament amb entitats sense ànim de lucre.
A partir d’ara podràs desgravar-te les teves donacions de la teva declaració de la renda. S’han incrementat els tipus de deducció aplicables a les donacions que es realitzin a favor de la Fundació Magone Salesians Social, com entitat acollida al règim fiscal especial de la Llei 49/2002, del 23 de desembre, de règim fiscal de les entitats sense fins lucratius i dels incentius fiscals al mecenatge.
Les persones físiques (les que tributen IRPF) es poden desgravar del total dels donatius que realitzis a l’entitat:
1. Des de l’1 de gener de 2024 es podran deduir fins al 80% els primers 250 euros.
2. La resta de donacions a partir de 251 euros la deducció s’incrementa fins al 40%.
3. Pels contribuents que hagin donat durant tres exercicis consecutius a la mateixa entitat, per un import igual o superior, el percentatge deductible serà d’un 45% si s’excedeix dels 250 euros, a partir del tercer exercic
Les persones jurídiques (aquelles que tributen per Impost de Societats, el IS) es poden desgravar:
- Donatius en general un 40%.
- Donatius recurrents un 50%.
- Amb un límit de deducció màxima: fins al 10% de la base liquidable.
¿Què és un donatiu recurrent?
Perquè un donatiu sigui considerat recurrent, s’ha de complir que en els dos períodes impositius immediats anteriors s’hagin realitzat donatius, donacions o aportacions a la mateixa entitat per un import igual, o superior, en cadascun, al del període impositiu anterior.
Per exemple, per als donatius realitzats durant l’any 2024 s’hauran d’analitzar els donatius efectuats en els anys 2023 i 2022.
Uneix-te a la nostra missió. Com a voluntari, amb una donació o col·laborant amb nosaltres. Comença avui mateix!
Email: fundaciomagone@salesians.cat
Truca: 932 065 910
